学校动态

150㎡北欧风,中式与现代的完美结合!

来源:未知发布时间:2018-07-19 17:05播放量:

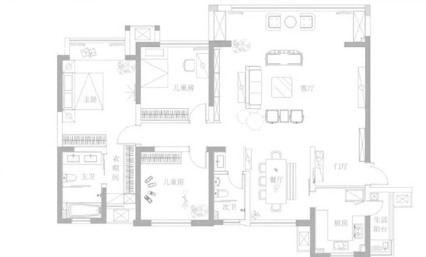
        先上户型图


房屋面积:150㎡
装修预算:35万
风格: 中式 北欧
房型:3室
我们采用环保的材料,尽量用全实木来营造整个家居空间
 
  
        客厅选择了三人位的深色皮质沙发为的是家里有小孩方便打扫,同时也增加了家里的现代感,衬托背后的书柜,不会显得过于古朴。旁边搭配了两把新中式的皮椅,造型有别于传统中式的单椅,但是造型又融入了木质,木质搭配皮椅,感觉中式和现代的结合。客厅顶面没有主灯,采用的全辅光源,这样更柔和。
 
        客厅沙发背景墙书柜为全实木榫卯板加木蜡油现场制作工艺,环保度很高,半开放柜体可以通过内里摆放物品的搭配作为一面空间形象墙,增加了储物空间,自然形成了全家的一个阅读区。书柜根据整面墙的长度做了石膏板假墙,做成将书柜直接嵌入墙里的感觉,一直做到了顶。
 
        通过一张弥勒榻连贯了客厅与阳台的空间感,在阳台上同样是现场用实木榫卯板制作了收纳柜体,因为家里没有放杂物的空间,所以在阳台上制作了一整面柜子,增大了储物空间,让阳台整洁有序。并且也和客厅的书柜很好的结合起来。
 
        入户玄关部分,采用立体造型感强的玄关柜,辅以中式风格的画及其他饰物,入户即能感受到整体的风格性。
 
        应客户要求电视墙没有挂电视,放置了隐藏式投影仪,投影仪的位置隐藏在了吊顶里。用两幅青花瓷花瓶的画来调整这一面空间的视觉感。厂家定制的电视柜,手绘水彩画。
 
        整个墙面采用了浅紫灰色,餐桌直接用了一块奥坎实木作为台面,配以黑色钢结构作为桌腿,餐椅采用条凳与餐椅的组合方式,形成视觉高度差,更错落有致,也为就餐人数预留了拓展可能。
 
       谷仓门的使用,节约了使用空间,也别有韵味成为屋里一道显著风景。
 
 
        餐边柜摆放两个龟背植物与画,在浅色墙体上更加彰显立体感,同时呼应更纵深的内部空间。
 
        主卫浴缸与整体墙面逐渐过渡,在砖的排列上做到上下统一,墙面线条和浴缸连为一体,用美缝剂做了黑色勾缝,上下不留卫生死角。卫生间也沿用了白色小方砖。
 
        主卫选择了双浴室柜和双镜柜,这样男主人和女主人的物品可以更好的划分使用,增强整理功能,由于两人爱好不同,所以根据袭击喜好选择了不同的龙头。全现场制作的全实木柜子加上木蜡油,非常的环保。

        另一个小儿子的房间,暂时还没有住人,所以就变成了玩具房,玩具收纳柜,特别做了类似屋顶的镂空造型,也可以搭帐篷,孩子很喜欢在里面玩耍。
 
        儿童房采用色彩上更加明显的蓝调子,双层实木床以及梯子上的抽屉,都让房间趣味十足。
 
        主卧简洁的木色家具加地板,风格统一,在木纹色度略有调节,增加了卧室空间的温馨感。主卧室没有做吊顶,用了一圈简单的阴角线条作为收边。
 
        为了让卧室更加干净整洁,所以选择了在衣帽间放剧透储物功能的化妆柜,在空间收纳性上做足文章。为了让化妆柜旁边的柜子更好取物,所以侧面用了隔板来制作。木质百叶窗让光线更多变化。
 
        厨房用了覆膜材质的蓝灰色柜门面板,台面没有选用常规的石英石台面,而是选择的仿木纹的台面,加白色小方砖,方便打扫,多排吊柜易于收纳符合厨卫空间的清爽洁净感,又与整体调性协调一致。



预约报名

咨询热线:400-678-1517  手机热线:15762291255

青岛德利丰设计师学校 版权所有 地址:青岛市市北区长沙路68号

备案号:鲁ICP备12016956号-1